1140
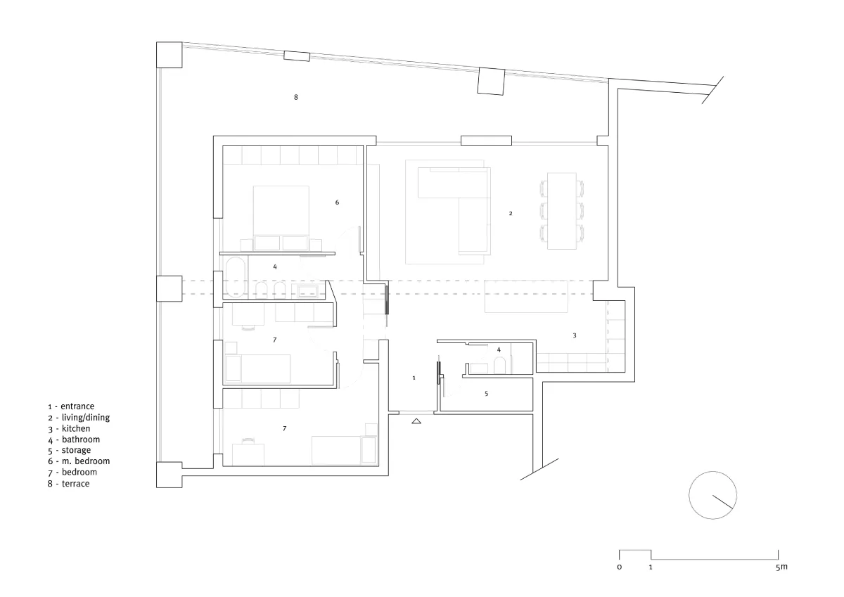
L’appartamento si trova al terzo piano di un complesso costituito da circa cento unità immobiliari che occupa un intero isolato all’incrocio tra Viale Pacinotti e Viale dei Mille, una delle vie più attive di Firenze, importante collegamento tra piazza delle Cure e Campo di Marte. Al momento del sopralluogo l’appartamento conservava la distribuzione originaria risalente agli anni ’60 che prevedeva una rigorosa separazione tra i vari locali. L’obiettivo del nostro progetto era quello di ridisegnare la zona giorno creando uno spazio continuo e piacevole da vivere, sfruttando l’esposizione Est-Ovest che assicurava un’illuminazione naturale diretta per tutto l’arco della giornata. L’ingresso, ridimensionato per ricavare un bagno di servizio ed un ripostiglio, adesso si apre su uno spazio indiviso che comprende il living, la zona pranzo e una cucina con isola. Una porta scorrevole conduce alla zona notte, modificata per ottenere una terza camera in luogo delle due esistenti. La grande trave in cemento, prima nascosta dall’intonaco e dalle tramezzature, e` stata riportata a vista diventando un elemento architettonico oltre che strutturale. Il pavimento e` un parquet in rovere a doghe che copre tutta la superficie dell’appartamento ad eccezione dello spazio della cucina e dei bagni dove è stato utilizzato un gres scuro. L’isola, il piano della cucina, la doccia e la vasca sono rivestiti in marmo Silver Roots. Le pareti sono tinteggiate di bianco in modo da esaltare la luminosità dello spazio. Il progetto illuminotecnico ha previsto dei corpi illuminanti ad incasso in modo che risultassero quasi invisibili da spenti tranne che sul tavolo da pranzo dove pendono i due cerchi in alluminio custom made.
