VILLA BIANCA
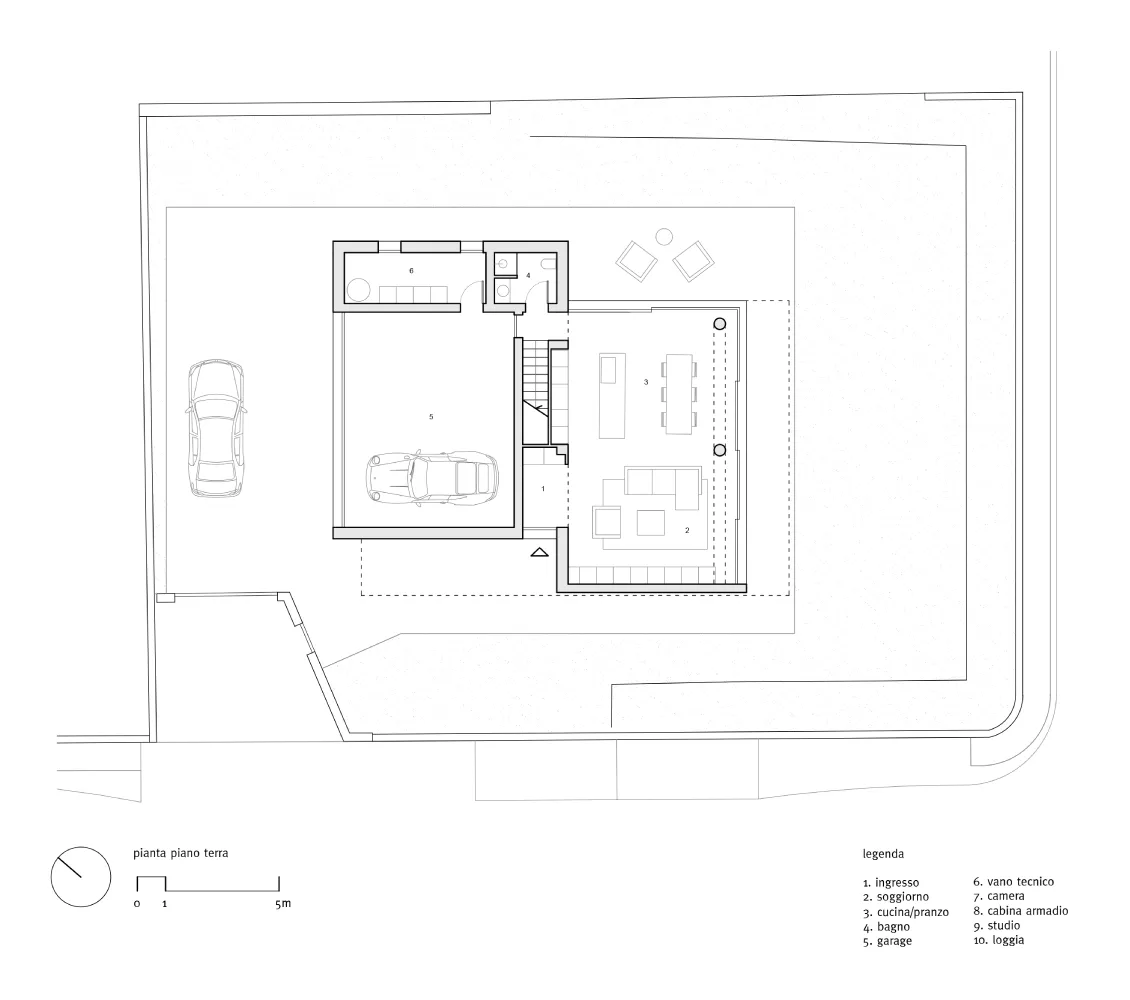
Il terreno edificabile aveva una certa pendenza naturale ed era situato ai margini del paese di Lamporecchio, all’intersezione di due strade che conducono all’interno del centro abitato. Il vecchio proprietario aveva pensato di modificarne l’originaria topografia in previsione di un futuro uso. Riportando terra aveva reso il lotto pianeggiante, migliorando così la capacità di contemplazione delle viste e aumentando la sensazione di intimità rispetto al livello stradale. Sarà proprio la particolare posizione angolare del lotto, rialzata e panoramica, il punto di partenza di un progetto che avrà come tema principale la ricerca di un dialogo col paesaggio circostante senza rinunciare alla privacy richiesta dalla committenza. L’abitazione si presenta come due parallelepipedi sovrapposti e sfalsati tra loro, due volumi puri e compatti, che intersecandosi conferiscono dinamicità alla composizione. Il volume superiore, maggiormente visibile dalla strada, presenta due parti a sbalzo: una copre il passaggio che dal cancello d’ingresso conduce alla porta principale mentre l’altra ha la funzione di proteggere le grandi vetrate del piano terra dagli agenti atmosferici. Le linee monolitiche di questo volume decisamente contemporaneo sono pensate per estendersi all’estremo, affermando la dualità tra massa e vuoto, superfici trasparenti e pareti opache. Il piano terreno ospita la zona giorno costituita da un living, una cucina con isola ed un tavolo da pranzo, il tutto racchiuso in un unico spazio vetrato che può essere completamente aperto sul giardino sfumando così il confine tra interno ed esterno. Un disimpegno permette l’accesso al servizio igienico, al garage e alla scala che porta alla zona notte. Al piano primo troviamo la camera master, dotata di cabina armadio, bagno e loggia privata, un piccolo studio ed altre due camere con cabina armadio che condividono un bagno e la grande loggia che correndo lungo il fronte principale incornicia il paesaggio collinare di Vinci. Il design personalizzato degli arredi, lo studio dell’illuminazione e i materiali utilizzati hanno contribuito al raggiungimento di un’unità spaziale che permette di vivere sempre la stessa esperienza anche in ambienti diversi della casa. Le superfici continue in resina cementizia contrastano con i delicati rivestimenti in marmo pregiato, mentre il parquet in rovere naturalizzato conferisce calore alla zona notte; il risultato è un’ estetica elegante e senza tempo, capace di fondere artigianalità e linguaggio contemporaneo.
